Kohde on vuokrattu tai poistettu listauksesta
Näytä lähialueen kohteet




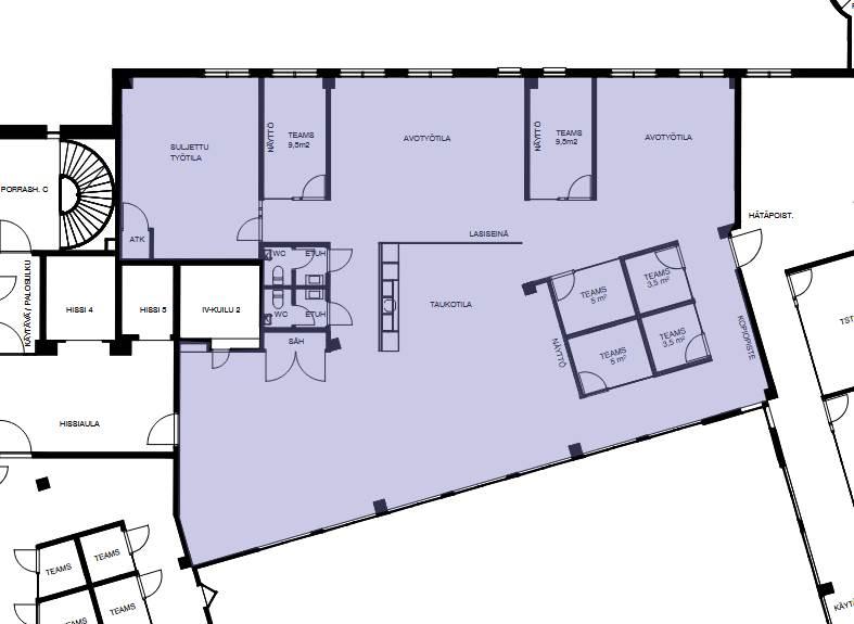
Useita erikokoisia tiloja eri kerroksissa. Tiloissa vain vähän kantavia rakenteita.
Tämä vanha, kaunis arvokiinteistö on rakennettu 1890-luvulla ja laajennettu 1950-luvun aikana 7-kerroksiseksi toimistotaloksi. Sen tilat ovat modernisoidut sekä jäähdytetyt ja sijainti aivan Helsingin liike-elämän ytimessä takaa vuokralaisen viihtyvyyden. Rakennus sijaitsee Aleksanterinkadun varrella ja Mikonkadun kulmassa, keskustan alueen palveluiden äärellä. Lähistöllä on lukuisia tasokkaita ravintoloita sekä myymälöitä. Kiinteistössä on oma lounasravintola ja kuntosali.
Ota yhteyttä ja pyydä lisätietoa kohteesta tai sovi näyttö. Whatsappilla saat tiimimme kiinni nopeasti myös iltaisin ja viikonloppuisin +358 50 065 2310. Tavoitat meidät myös sähköpostilla hq@hqfinder.com.