



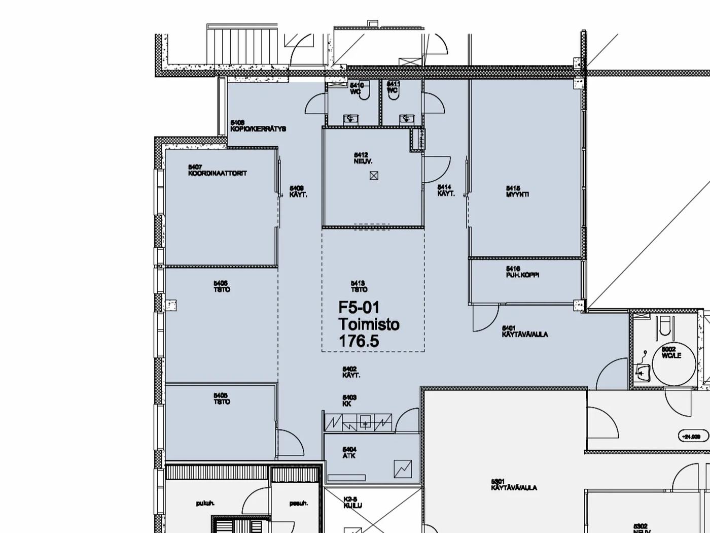
Vuokrattavissa 5. kerroksen viihtyisä 180 m2 toimistotila, jossa on erillisiä toimistohuoneita. avotoimistotilaa ja neuvotteluhuone. Kokonaisneliöt muodostu 176,5 m2 toimistotilasta ja 3,5 m2 jyvityksistä.
Alberga Business Parkin erittäin kattavat palvelut huolehtivat, että työntekijäsi saa keskittyä olennaiseen ja muuntojoustavat tilat on suunniteltu tukemaan työhyvinvointia sekä tuottavuutta.
Kiinteistön monipuoliset palvelut kattavat aulapalvelusta ravintola- ja cateringpalveluihin sekä monipuolisiin toimitilapalveluihin. Lisää palveluja löytyy viereisestä kauppakeskus Sellosta.
Alberga Business Park sijaitsee Kehä I:n varressa, ja siellä on oma pysäköintitalo sekä henkilökunnalle että vieraille. Leppävaaran asema on lyhyen kävelymatkan päässä ja pikaraitiolinja kulkee business parkin edestä. Työmatkapyöräilijöitä palvelevat polkupyörävarasto sekä pukeutumis- ja pesutilat.
Ota yhteyttä ja pyydä lisätietoa kohteesta tai sovi näyttö. Whatsappilla saat tiimimme kiinni nopeasti myös iltaisin ja viikonloppuisin +358 50 065 2310. Tavoitat meidät myös sähköpostilla hq@hqfinder.com.