




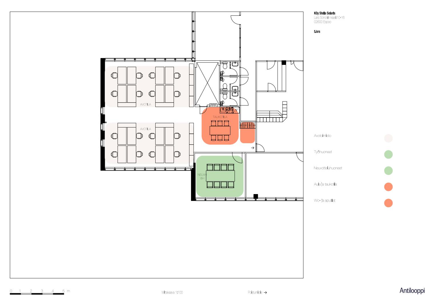
Vuokrattavissa moderni ja tilaratkaisuiltaan joustava 5. kerroksen 228,5 m2 toimistotila. Huonejärjestelyiden osalta tila voidaan suunnitella ja toteuttaa vuokralaisen tarpeiden mukaan.
Toimistotalo Estrade on osa laajempaa Quartetto Business Parkia, joka sijaitsee hyvien yhteyksien äärellä Espoon Leppävaarassa. Turunväylän ja Kehä 1:n liittymien lähettyvillä. Pikaraitiotielinja 15 pysäkki sijaitsee noin 200 metrin päässä ja Leppävaaran juna-asemalle on lyhyt kävelymatka. Kiinteistössä on myös lämmin parkkihalli, josta löytyy sähköauton latauspaikkoja. Polkupyörille on pyöräparkki pihalla sekä parkkihallissa.
Estraden kattava palveluvalikoima sisältää mm. aulapalvelut, viihtyisän lounasravintolan sekä kahvilan. Lisäksi kiinteistössä on vuokrattavia kabinetti- ja monitoimitiloja, sekä saunatilat, terassi ja takkahuone. Kiinteistössä on lastauslaituri ja vuokrattavissa erikokoisia varastotiloja. Lukuisia lounasravintoloita sekä laajasti muita palveluita löytyy lähettyvillä sijaitsevasta Kauppakeskus Sellosta.
Ota yhteyttä ja pyydä lisätietoa kohteesta tai sovi näyttö. Whatsappilla saat tiimimme kiinni nopeasti myös iltaisin ja viikonloppuisin +358 50 065 2310. Tavoitat meidät myös sähköpostilla hq@hqfinder.com.