




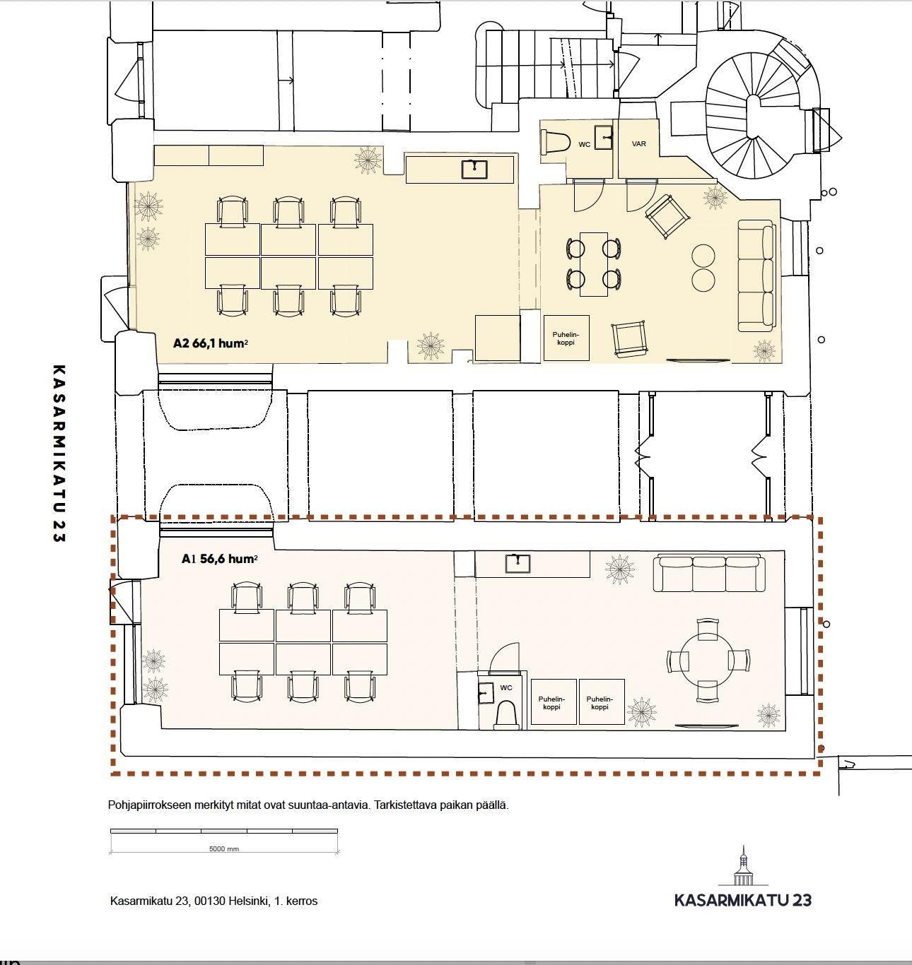
Vuokrataan ylimmän kerroksen upea muuttovalmis toimisto Helsingin paraatikadulla, Pohjoisesplanadilla, sijaitsevasta Carl Ludvig Engelin suunnittelemasta Cavoniuksen talosta. Tilasta näkymät sisäpihalle.
Ota yhteyttä ja pyydä lisätietoa kohteesta tai sovi näyttö. Whatsappilla saat tiimimme kiinni nopeasti myös iltaisin ja viikonloppuisin +358 50 065 2310. Tavoitat meidät myös sähköpostilla hq@hqfinder.com.